פרטי הנכס
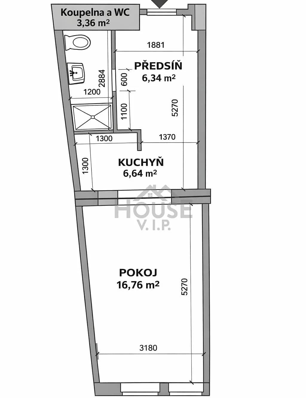
למכירה בפראג 10 דירת 1+KK חדרים בגודל 33 מ"ר
הדירה נמצאת בקומה 2 בבניין בן 4 קומות בשכונת ורשוביצה
הדירה כוללת גלריה לשינה וכן אפשרות לאחסון מובנה (בילט-אין) במסדרון הכניסה
המחיר כולל ריהוט חלקי
הדירה קרובה לשירותים עירוניים שונים כמו גן שעשועים, גן ילדים, מגרש ספורט ובית ספר
בנוסף, הדירה נמצאת במרחק הליכה מתחנה של חשמלית.
מידע למשקיע
הון עצמי נדרש בקבלת 60% מימון: 2,756,000 קרונות
*הנתונים הינם אומדנים והערכות ונכונים ליום פרסומם.
*נכון להיום, זכאים לקבלת מימון הם אזרחי צ'כיה או בעלי מעמד של תושבי קבע בצ'כיה.
מאפייני נכס
פראג 10 30-40 מ"ר 6 עד 10 מיליון קרונות 1+kk זקוק לשיפוץזקוק לשיפוץ קל דירה למכירה* לחיצה על מאפיין מסויים תציג נכסים דומים נוספים
